Sectional Elevations
Sectional Elevations Process
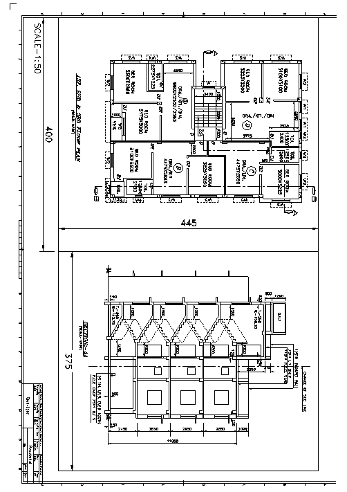
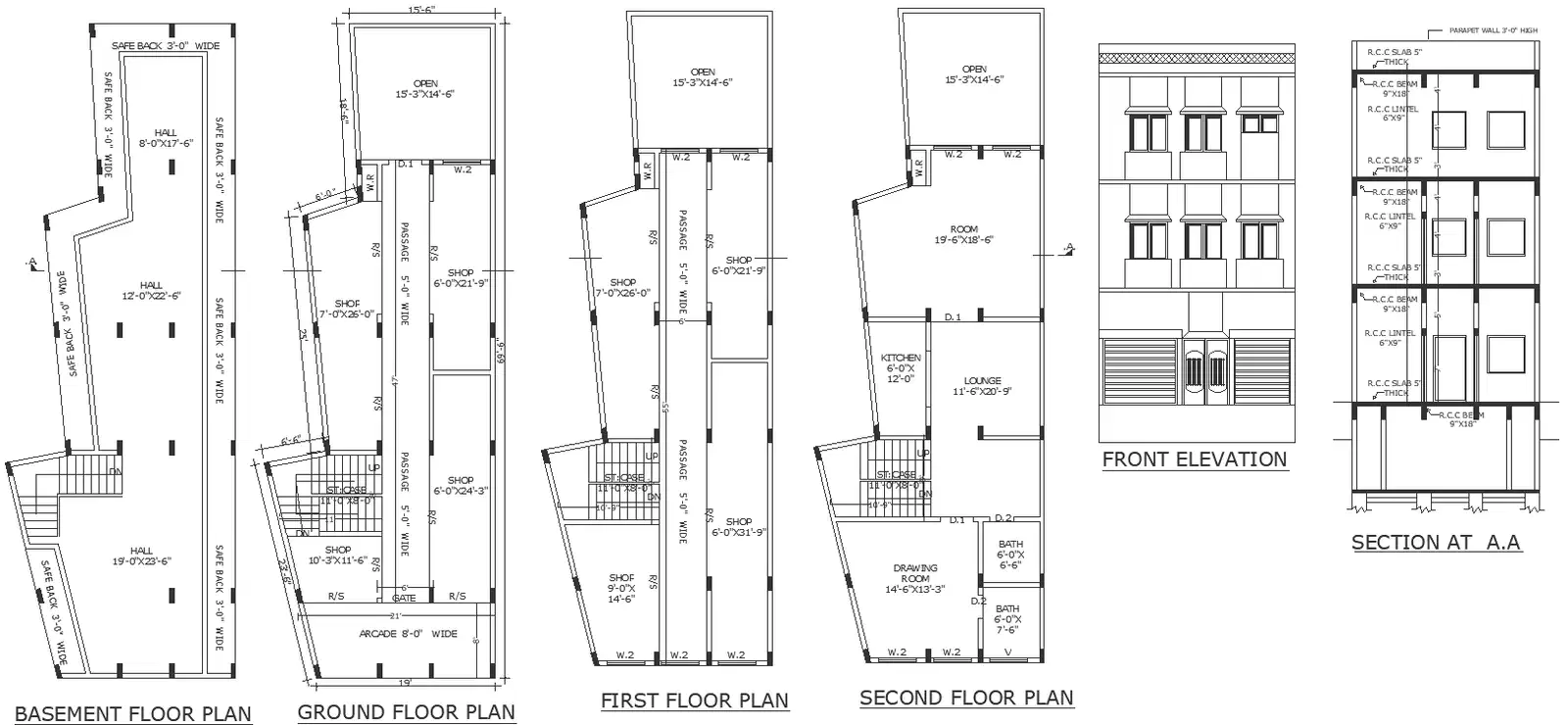
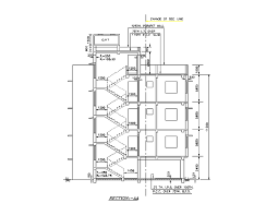
A sectional elevation is a detailed technical drawing that shows a vertical cut through a building to reveal its internal structure and components. This process is essential for understanding the relationships between various building elements, including walls, floors, roofs, and internal features.
Step-by-Step Process for Creating Sectional Elevations
Identify the Section Line
- The process begins by selecting a section line on the floor plan. This line indicates where the building will be cut to create the sectional elevation. The line typically runs through important areas that need to be detailed, such as staircases, windows, or structural elements.
Draw the Cut View
- The next step is to draw the cut-through view of the building. This includes showing walls, floors, ceilings, and any internal components that the section line passes through. The cut surfaces are usually shaded or hatched to differentiate them from other elements.
Add Dimensions and Details
- Once the basic section is drawn, dimensions are added to indicate the heights of walls, floors, ceilings, and other structural components. Important details like beam sizes, slab thicknesses, and ceiling heights are included to ensure accurate construction.
Include Internal Features
- The sectional elevation should show internal features, such as doors, windows, staircases, and furniture placements, to give a complete understanding of the building’s interior layout.
Annotate Materials and Finishes
- Material specifications and finishes are noted to indicate what materials are used for walls, floors, and ceilings. This helps builders and contractors understand the construction requirements.
Add Symbols for Services
- The drawing may also include symbols for electrical, plumbing, and HVAC services to provide a complete picture of how these systems are integrated within the structure.
Review and Finalize
- The final step is to review the sectional elevation for accuracy and ensure that all necessary details are included. This finalized drawing becomes a crucial reference for architects, engineers, and builders during the construction process.
Benefits of Sectional Elevations
- Provides a clear understanding of internal building components.
- Helps visualize how different building elements connect and function.
- Ensures accuracy in construction by specifying dimensions and materials.
- Assists in identifying potential design or structural issues before construction begins.
Sectional elevations are an indispensable tool in construction documentation, offering insights that floor plans and regular elevations cannot provide.
Feel Free to Contact Us
Get in touch with us today to discuss your project requirements and discover how Scanobee can make a difference in your digital construction journey.