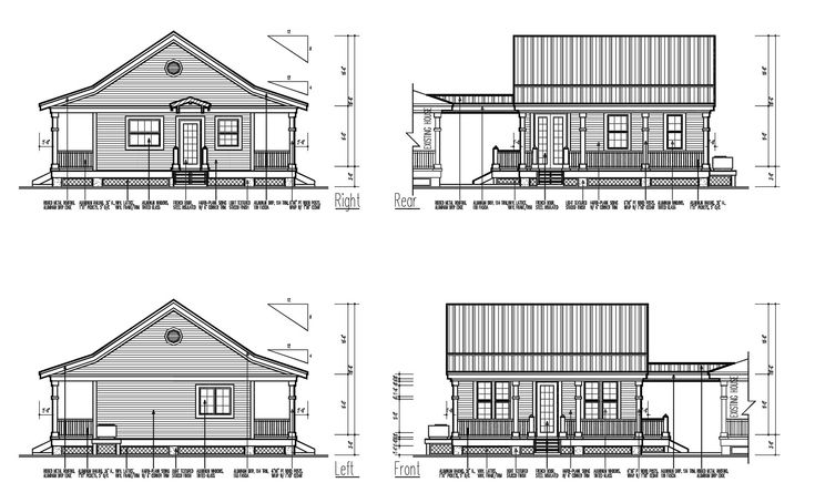
External Elevations

External Elevation Process

External Elevations are detailed drawings that depict the exterior view of a building from each side (front, rear, left, and right). These drawings provide a comprehensive visual representation of the structure’s design, including the façade, materials, and architectural details. Below is a step-by-step process for creating external elevation drawings:


1. Understanding Project Requirements

The process begins with a thorough understanding of the client’s needs, architectural style, and building specifications. Designers gather details such as materials, finishes, window placements, doors, and other exterior features.

2. Reference to Floor Plans

External elevations are created by referencing the floor plans to ensure the exterior drawings are consistent with the building’s internal layout. The designer uses the floor plan to determine the height, width, and positioning of walls, doors, windows, and other structural elements.

3. Defining the Elevation Views

Separate elevation drawings are prepared for each side of the building:

  • Front Elevation – Shows the main entrance and front-facing features.
  • Rear Elevation – Illustrates the back side of the structure.
  • Left/Right Side Elevations – Displays the side views, capturing details like side windows and secondary entrances.

4. Adding Architectural Details

Key details such as window types, door styles, rooflines, balconies, railings, and decorative elements are incorporated. These details provide a realistic visual of the building’s exterior design.

5. Annotating Dimensions and Levels

The elevations include precise dimensions to indicate the heights of walls, windows, doors, and other elements. Levels such as ground level, plinth level, and roofline are marked for accurate construction.

6. Indicating Materials and Finishes

The drawings specify the materials and finishes to be used for the building’s exterior, such as brickwork, cladding, roofing materials, and paint colors. This helps contractors understand the look and feel of the completed structure.

7. Adding Notes and Symbols

Construction notes, symbols for exterior fixtures (lighting, vents, etc.), and instructions are included to guide builders during construction.

8. Reviewing and Finalizing

The external elevation drawings are reviewed for accuracy and completeness before being shared with the client or construction team. Any necessary adjustments are made based on client feedback or site conditions.

Feel Free to Contact Us

Get in touch with us today to discuss your project requirements and discover how Scanobee can make a difference in your digital construction journey.

Scroll to Top