Ceiling plan

Ceiling Plan Process

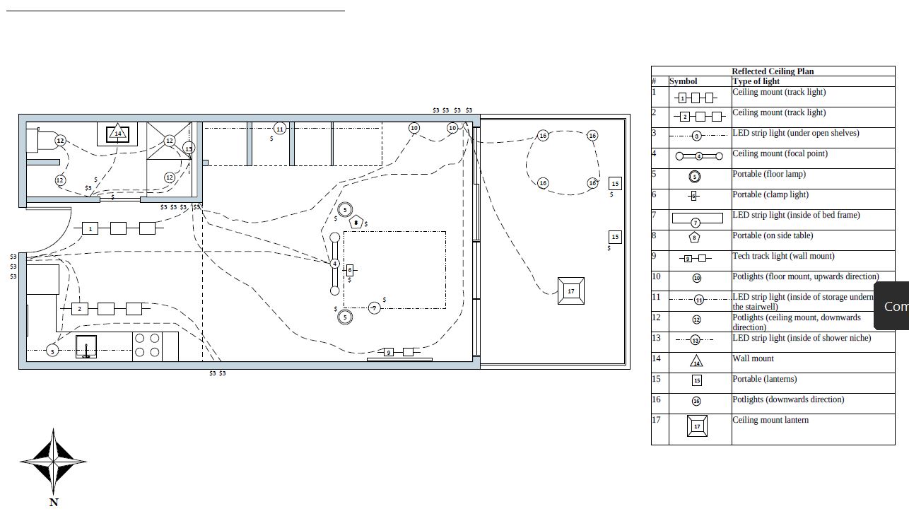
A ceiling plan is a technical drawing that represents the overhead view of a ceiling layout, showing the placement of fixtures, lighting elements, ventilation systems, and other structural details. Here’s a step-by-step breakdown of the process involved in creating a ceiling plan:


Step 1: Understand the Project Requirements

  • Review the floor plan to understand the spatial layout, room dimensions, and functional requirements.
  • Identify the type of ceiling design (flat, coffered, vaulted, etc.) and the necessary elements to be included, such as light fixtures, fans, air vents, and sprinklers.

Step 2: Draft the Basic Ceiling Layout

  • Start by drawing the perimeter of the ceiling, matching the room’s dimensions from the floor plan.
  • Indicate any changes in ceiling height, such as drop ceilings or recessed areas.

Step 3: Add Fixtures and Elements

  • Mark the placement of ceiling fixtures like lights, fans, air vents, and smoke detectors.
  • Use standardized symbols to represent each element for clarity.
  • Ensure the spacing of light fixtures and vents is balanced for both aesthetics and functionality.

Step 4: Include Structural and Electrical Details

  • Add annotations to indicate the type of lighting (recessed, pendant, etc.), materials, and finishes.
  • Show electrical connections and wiring pathways to ensure proper installation of fixtures.

Step 5: Verify Alignment with Floor Plan

  • Cross-check the ceiling plan with the floor plan to ensure proper alignment of fixtures with furniture placement, walls, and windows.
  • Make adjustments if necessary to avoid conflicts or overlaps.

Step 6: Finalize and Annotate the Drawing

    • Include dimensions to specify the exact placement of elements.
    • Add notes or legends to explain symbols and provide additional details for construction.

Feel Free to Contact Us

Get in touch with us today to discuss your project requirements and discover how Scanobee can make a difference in your digital construction journey.

Scroll to Top